Lakeforest Mall Redevelopment Meeting Coming Soon
The meeting will be a hybrid - virtual and in-person
By Keith on January 9, 2023
January 17 is the date the City Council has scheduled to hear public comment on the redevelopment of the 100 acre property that is now Lakeforest Mall.
The city of Gaithersburg has a project page for this critical development of the last big chunk of land in Gaithersburg. You can view the city's page here. The plan that the new property owner is proposing is available here.
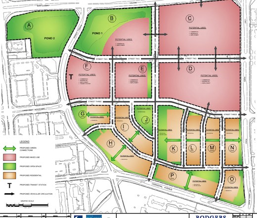
The pinkish areas are "mixed use." The list of potential uses are residential, commercial and "employment." What does "employment" mean? Reading the proposal, "employment" is office space? For Gaithersburg to go long on office space in 2023 is insane. Of the 100 acres of land that isn't a pond, it looks like the plan is to potentially allocate more than half of the buildings to office space.
I'd rather see this space developed into a community place for people to shop, eat, have a beer, walk the dog to the dog park. But this plan to go deep on office space is not a plan for the future. It doesn't make our community better.
I'd rather see the entire property turned into a park rather than a bunch of empty office buildings.
There's no agenda yet published, but here's a link to the January 17 meeting. Regardless of what you think should be done with this property, everyone is encouraged to express their opinions. Show up to the meeting in-person or virtually. Send a letter to the city manager and mayor.
This is an important project and it's easy to get it wrong.
Previous Lakeforest Mall Reporting
- Lakeforest Mall Deteriorates September 15, 2021
- City Council Approves Lakeforest Mall Master Plan August 27, 2021
- City Council Monday Lakeforest Mall Final Vote August 13, 2021